БАДЕН №860

Цена строительства от 6 200 000 ₽* * Стоимость не является окончательной
Заявка на консультацию
  • Общая площадь 78 м2
  • Длина 11.7 м
  • Ширина 8.6 м
  • Материал стен Газобетон/пеноблок
  • Количество этажей 1
  • Подвал Нет
  • Мансарда без мансарды
  • Гараж Нет
  • Терраса Нет
  • Проживание Круглогодичное
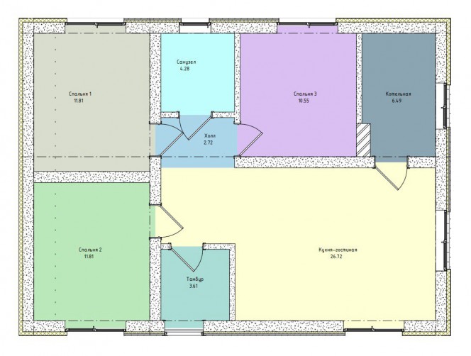
  • Количество комнат 4
  • Количество спален 3
  • Количество санузлов 1
  • Вид проекта дом
  • Застройщик Симпл хаус
  • Отделка фасада Комбинированная
  • Крыша Двускатная
  • Можно купить домокомплект Нет
  • Модульный тип строения Нет
Планировки
Описание проекта

Небольшой дом с двускатной крышей — отличный вариант для семьи из 3-4 человек. Благодаря четкой геометрической форме и декоративному оформлению деревянными панелями дом легко впишется в любой ландшафт.

Лаконичный, экономичный дом обладает внутренней простотой. Планировкой предусмотрены просторная кухня-гостиная, три спальни, санузел и котельная. Комнаты квадратной формы позволяют наиболее эффективно использовать внутреннее пространство. Большие панорамные окна обеспечивают поток естественного света и красивый вид на окружающую природу. Этот дом — уютное и функциональное решение для тех, кто ценит практичность и простоту в деталях.

Фасад - декоративная штукатурка

Комплектация STANDART - 6 200 000 р.

Комплектация WHITE BOX - 7 500 000 р.

Фасад - облицовочный кирпич

Комплектация STANDART - 6 600 000 р.

Комплектация WHITE BOX - 7 900 000 р.

Вас может заинтересовать
Вас может заинтересовать

Выбор местоположения

Задать вопрос / написать нам

E-mail: domgis@mail.ru

Мы свяжемся с Вами в течение дня.

Тех. поддержка
Предмет обращения:
Тукущая страница

Мы свяжемся с Вами в течение дня.

Уведомление
Предмет обращения:
Тукущая страница
Обратный звонок
Обратный звонок
Выберите ваш город
Пожаловаться

Объявление опубликовано.
Изменения сохранены

Период публикации - бессрочный, при условии подтверждения актуальности каждые 50 дней. Уведомления будут отправляться на Вашу электронную почту.

Выберите причину снятия с публикации

Снятые с публикации объявления не участвуют в поиске и недоступны для подробного просмотра.

Для повторной публикации нажмите «Вернуть в публикацию»