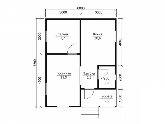
Проект одноэтажного дома из бруса в компании малоэтажные дома , общая площадь которого составляет 38.6 кв.м., – это эксплуатационный надежный проект дома из бруса, функциональность и изысканный дизайн.
Проект дома из бруса 48 отличается удобной экспликацией помещений: удобная кухня, просторная светлая гостиная и комфортная спальня дома из бруса Во всех жилых комнатах проектом предусмотрены зимние двойные окна и деревянные двери. На входе в дом из бруса стоит надежная металлическая дверь.
Законченный вид дому из бруса придает двускатная, надежно защищающая строение от снега и непогоды.
Экологическая чистота деревянного дома из бруса пиломатериала и свойство натурального дерева «дышать» - преимущества, обусловившие популярность домов из бруса. Двойные оконные рамы домов из бруса, монолитная структура домов из бруса и дополнительный слой теплоизоляции сберегают тепло и формируют комфортные условия для круглогодичного проживания в городе Новосибирск!
Выбор местоположения
Мы свяжемся с Вами в течение дня.