100 Space X №196

Цена строительства от 6 614 000 ₽* * Стоимость не является окончательной
Заявка на консультацию
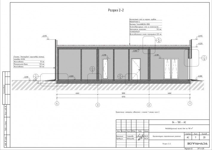
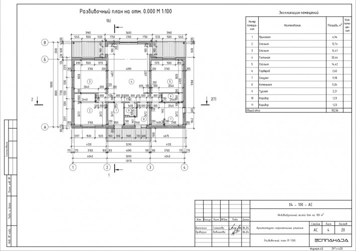
  • Общая площадь 100 м2
  • Длина 13.17 м
  • Ширина 8 м
  • Материал стен Каркасно-панельные
  • Количество этажей 1
  • Подвал Нет
  • Мансарда без мансарды
  • Гараж Нет
  • Терраса Нет
  • Проживание Круглогодичное
  • Количество комнат 4
  • Количество спален 3
  • Количество санузлов 2
  • Вид проекта дом
  • Застройщик Амадом
  • Архитектурный стиль Модерн
  • Отделка фасада Лицевой кирпич
  • Крыша Плоская
  • Можно купить домокомплект Нет
  • Модульный тип строения Нет
Планировки
Описание проекта

Стоимость white box 6 922 000

Что входит в стоимость

Фундамент + Домокомплект

- Инженерная геология и геодезия

- Разработка котлована

- Геотекстиль 100гр/м2 основания

- Устройство песчаного основания, послойно утрамбованным песком средней крупности

- Устройство щебеночного основания, фракция 20-40 мм

- Монтаж канализационных труб под плитой

- Ввод водяной трубы

- Ввод закладных для кабеля и резерва

- Профилированная геомембрана из полиэтилена высокой плотности

- Стальная арматура согласно проектной документации

- Заливка фундаментной плиты бетоном согласно проектной документации

- Изготовление, доставка и монтаж железобетонных изделие домокомплекта.

* В комплект поставки входят все несущие наружные (трехслойные утепленные панели) и некоторые внутренние опорные стены (однослойные железобетонные от 120 до 160 мм), межэтажные перекрытия, металлоконструкции согласно проекту.

* Стоимость фундамента зависит от почвы, на которой будет стоять дом и может быть изменена в любую сторону, окончательный расчет возможен после получения результатов инженерно-геологических изысканий.

Срок строительства - 35 - 50 дней.

Дополнительно можно заказать:

- Устройство въезда на участок

- фундамент террасы

- подготовку парковочных мест (фундамент, отсыпка)

Вас может заинтересовать
Вас может заинтересовать

Выбор местоположения

Задать вопрос / написать нам

E-mail: domgis@mail.ru

Мы свяжемся с Вами в течение дня.

Тех. поддержка
Предмет обращения:
Тукущая страница

Мы свяжемся с Вами в течение дня.

Обратный звонок
Обратный звонок
Выберите ваш город
Пожаловаться

Объявление опубликовано.
Изменения сохранены

Период публикации - бессрочный, при условии подтверждения актуальности каждые 50 дней. Уведомления будут отправляться на Вашу электронную почту.

Выберите причину снятия с публикации

Снятые с публикации объявления не участвуют в поиске и недоступны для подробного просмотра.

Для повторной публикации нажмите «Вернуть в публикацию»